
Conocé “288 Departamentos e Infraestructura en Alto Comedero”
Contará con unidades funcionales de 2 dormitorios




Operatoria Público - Privada
– Operatoria Público - Privada (realizado el 17/102025, con transmisión en vivo). -
Descargar Resultados.
para el Sorteo de Orden de Prelación de 288 Departamentos e Infraestructura en Alto Comedero" – Operatoria Público – Privada. (DESCARGAR)

Luego adherir online a “288 Departamentos e Infraestructura en Alto Comedero”.
Para más información consultá las “Preguntas Frecuentes” de esta operatoria. (Y la Resolución N°1152-IVUJ-2025)

Es una operatoria público - privada que lleva adelante el Instituto de Vivienda y Urbanismo de Jujuy (IVUJ). Los 288 departamentos se emplazan en el sector 150 hectáreas del barrio Alto Comedero, en San Salvador de Jujuy. Junto a otras operatorias ya edificadas por el IVUJ en ese espacio, la propuesta mejora de manera inmediata el sector y fomenta una comunidad activa y conectada.
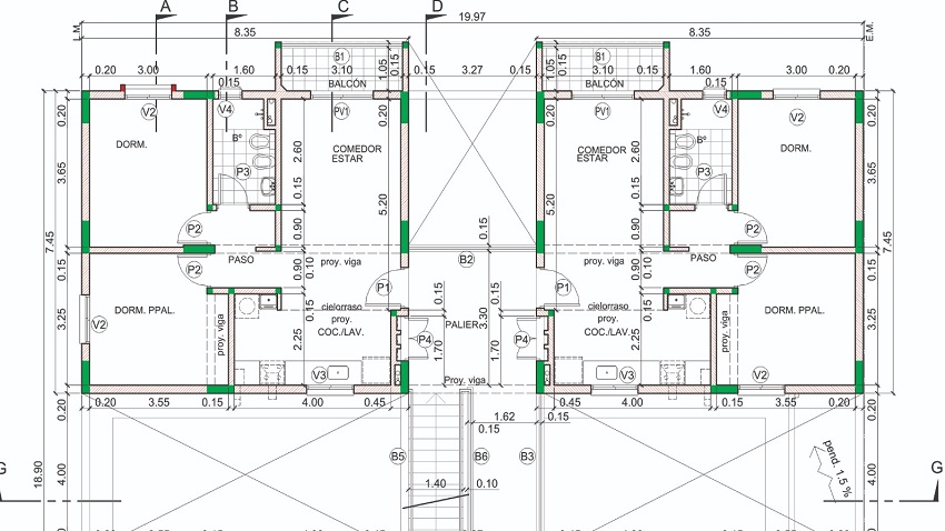
Cada departamento cuenta con 2 dormitorios, cocina, baño y balcón, priorizando el diseño, la iluminación y la ventilación natural. Las torres se agrupan dejando un espacio verde lineal, diseñado para el encuentro y la recreación. Además, las dársenas de estacionamiento en la calle aseguran una circulación fluida y ordenada, garantizando la continuidad en la movilidad del barrio.
Se realiza únicamente vía internet, mediante el sitio web oficial: ivuj.gob.ar. Para adherirse es necesario estar inscripto/a en el Instituto de Vivienda y Urbanismo de Jujuy (IVUJ), hasta el 31 de agosto de 2025. La adhesión online, se podrá realizar entre el 1 y hasta el 21 de septiembre, inclusive, del presente año, fecha prevista como límite para registrar dicha adhesión, se trata de un trámite breve y sencillo, que se puede realizar mediante celular o computadora (deberá poseer conexión a internet). Recordamos que el IVUJ no cuenta con gestores, ni intermediarios.
- Quienes hayan registrado su inscripción y/o actualización de datos en el sistema online del IVUJ hasta el 31 de agosto de 2025.
- Argentinos/as nativos/as o por opción.
- Residentes en “Gran Jujuy” (que incluye a San Salvador de Jujuy, Palpalá, y Yala).
- Ser mayor de 18 años y hasta los 55 años.
- Poseer ingresos suficientes exigidos por la presente operatoria (los cuales son debidamente informados al momento de realizar la adhesión online).
- No ser propietario/a, de bienes inmuebles, ni haber sido durante el año anterior a la adhesión online.
- No ser adjudicatarios o tenedores de tierras fiscales.
- No ser ocupantes irregulares de inmuebles públicos o privados.
- No estar inhabilitados por el Instituto de Vivienda y Urbanismo de Jujuy.No haber sido beneficiario/a de programas de adjudicación de viviendas u otros beneficios otorgados por el IVUJ, ya sea en forma individual o en condominio a través de terceros.
Podrán ser considerados los ingresos de todos los miembros del grupo familiar declarado, en cuyo caso si son trabajadores en relación de dependencia, según los haberes que surjan del recibo de sueldo, si son trabajadores independientes se considera como ingreso los declarados en la certificación de ingresos.
Todas las unidades habitacionales son de dos (2) dormitorios.
Si los ingresos del grupo familiar son insuficientes a los informados ante el IVUJ al momento de realizar la adhesión online, ello será causal de exclusión en el momento de la evaluación posterior al sorteo de orden de prelación.
Las personas interesadas tendrán que ingresar al portal institucional del Instituto de Vivienda y Urbanismo de Jujuy (IVUJ), buscar “288 Departamentos e Infraestructura en Alto Comedero”, y elegir el botón “Adhesión Online”, el sistema les solicitará que tenga un usuario y contraseña vigentes para quienes cumplan con los requisitos de haberse inscripto y/o actualizado sus datos hasta este 31 de agosto del corriente año, y sean residentes en Gran Jujuy. Durante la adhesión online el sistema le brindará diferente información que debe ir validando a los fines de poder avanzar, al finalizar, cuando se cliquea “Guardar” el sistema crea un archivo .pdf con los datos de la adhesión (número), el cual se puede guardar o imprimir.
“Ahorro previo” es la cantidad de dinero que debe aportar la persona adjudicataria durante el periodo de construcción de la unidad habitacional el cual representa el 20% del costo total de la unidad habitacional.
Formas de financiamiento del ahorro previo: 2 formas: en una sola cuota o financiado.
Financiado el 10% en 24 cuotas y el 10% restante en las siguientes 24 cuotas.
Las cuotas son actualizables en UVIs. (UVIs: son unidades de cuenta para invertir, ahorrar o tomar préstamos, porque están en relación con el precio de otros bienes y servicios. Por ejemplo, mil UVIs, vale lo mismo que un metro cuadrado de construcción. Su valor es publicado diariamente por el Banco Central de la República Argentina y acompaña el índice del costo de la construcción.)
Las personas que desean participar de la presente operatoria, registraron su inscripción en IVUJ hasta la fecha requerida, también la adhesión online en el periodo que publicó el IVUJ, deberán aguardar el Sorteo Público de Orden de Prelación en el que se conocerá el orden para el análisis de los legajos en la medida en que hayan salido sorteado.
Sí.









